MWM Zelfinstellende elektromagnetische rem EMF
MWM Zelfinstellende elektromagnetische rem EMF: Een rem is een apparaat dat de beweging van een roterende as binnen een bepaalde tijd stopt, vertraagd of vasthoudt, afhankelijk van de entiteit van de te remmen massa.
MWM produceert de volgende soorten remmen:
– Meerdere schijven (of multidisc) – hoofdzakelijk ontworpen voor gebruik in oliebaden of droge toepassingen met lage snelheid;
– Enkele schijf – alleen droog gebruikt.
– Remklauwremmen – wanneer de te remmen massa een groete remschijf vereist; de modulaire versies hebben een of meer remklauwen die gelijktijdig of afzonderlijk worden bediend.
Ze kunnen op de volgende manieren worden bestuurd:
– Handmatig
– Hydraulisch
– Pneumatisch
– Electromagnetisch
Ze kunnen op twee verschillende manieren werken:
POSITIEF: wanneer de besturing het noodzakelijke remeffect genereert.
NEGATIEF (met veerdruk): wanneer het effect (remmen) wordt bereikt zonder controle, waardoor de rem wordt uitgeschakeld. Deze worden voornamelijk gebruikt als nood- of blokremRem EMF
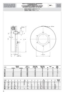
CODE: 08.04. ••• .01
EMF
Zelfinstellende elektromagnetische rem met één schijf.
Spanning 24 V DC – 0 + 15%
Gebruikt voor droge toepassingen.
Beschikt over een automatisch systeem om slijtage tussen wrijvingsoppervlakken te verminderen
Het spoelgedeelte (1) wordt op een vaste steun bevestigd, terwijl de pennen (4) op het draaiende deel worden geschroefd om te worden afgeremd.
Statische momenten (ms) van 70 tot 950 Nm.








